BIỆT THỰ MÁI NHẬT 2 TẦNG ANH THƯỚNG BT30301
MẪU THIẾT KẾ BIỆT THỰ ĐẸP
Chào Mừng Quý Vị đã Đến với Nhà Đẹp GEMIHOME
Mẫu thiết kế biệt thự mái nhật 2 tầng hiện đang được rất nhiều chủ đầu tư lựa chọn. Bởi các công trình 2 tầng này đều đáp ứng được yêu cầu về công năng sử dụng, chi phí xây dựng vừa phải của đông đảo các gia đình. Hơn nữa, kiến trúc mái nhật độc đáo, độ dốc nhẹ, kiến trúc được tối giản mà vẫn thể hiện được vẻ đẹp sang trọng cho tổng thể công trình.
Để hiểu rõ hơn về các mẫu mái Nhật 2 tầng, GEMIHOME mời quý khách hàng và bạn đọc tham khảo ngôi biệt thự rộng 150m² dưới đây. Ngôi biệt thự 2 tầng đã hoàn toàn thuyết phục gia chủ qua kiến trúc ngoại thất mới lạ cùng không gian sống tiện nghi, khoa học.
1. Thông tin công trình mẫu biệt thự mái nhật 2 tầng
Chủ đầu tư: Anh Thướng Địa chỉ:Yên Khánh- Ninh Bình
Mặt tiền:11,2m Diện tích xây dựng:11,2m x 14,4m
Số tầng:2 tầng Loại hình:Biệt thự mái Nhật
Tổng diện tích: >200m² Chi phí đầu tư: 1.5 tỷ
Công năng:
- Tầng 1: phòng khách, phòng ngủ, bếp ăn, WC
- Tầng 2: Phòng ngủ, phòng thờ, sân chơi, WC
Đơn vị thiết kế: CÔNG TY CỔ PHẦN KIẾN TRÚC VÀ ĐẦU TƯ XÂY DỤNG GEMIHOME
2. Chiêm ngưỡng ngoại thất mẫu biệt thự mái nhật 2 tầng nhà anh Thướng
Mẫu biệt thự 2 tầng rộng 150m² được bố trí với 4 phòng ngủ tiện nghi đã nhận được sự hài lòng của chủ đầu tư. Với kiến trúc hiện đại kết hợp với mái nhật độc đáo, công trình hiện lên vô cùng phóng khoáng, tiện nghi và ấn tượng. Ngoại thất ngôi nhà gây ấn tượng bởi các vật liệu cùng sự kết hợp màu sắc hiện đại, tinh tế. Hơn nữa, nội thất được chú trọng bố trí để mang đến một không gian sống tiện nghi và thoải mái nhất cho gia đình chủ đầu tư.
Sự kết hợp giữa kiến trúc hiện đại và mái nhật giúp ngôi biệt thự 2 tầng hiện lên vô cùng thanh thoát, thông thoáng và cao ráo. Ngoại thất ngôi nhà gây ấn tượng mạnh mẽ bởi các đường nét kiến trúc, các hình khối hình học độc đáo, các vật liệu trang trí mới lạ. Từ đó góp phần mang đến một diện mạo sang trọng, bề thế và trường tồn với thời gian cho công trình 2 tầng.
Gam màu trắng chủ đạo được tô điểm bởi sắc xanh gạch ngói cùng với màu nâu của tường, cửa chính. Tất cả được bố trí hài hòa, hòa quyện với nhau giúp ngoại thất công trình trở nên sang trọng, độc đáo và ấn tượng hơn bao giờ hết.
Đặc biệt, với kiến trúc mái nhật đơn giản, độc đáo, công trình đã đáp ứng được sở thích của gia chủ. Hệ thống mái có độ bằng cao, độc dốc nhẹ mở ra các hướng khác nhau. Thiết kế mái chồng lớp vô cùng ấn tượng và bề thế. Mái bằng được đổ dài và rộng ra bốn góc góp phần che nắng che mưa, cho không gian nhà rộng rãi, mát mẻ hơn. Đây cũng là kiểu mái được ưa chuộng trong những năm gần đây bởi sự trẻ trung và tối giản.
Diện tích đất xung quang được KTS khéo léo sắp đặt không gian cảnh quan thiên nhiên đẹp mắt tạo nên được một cuộc sống thoải mái, thoáng mát và trong lành cho chủ đầu tư. Nhìn từ trên cao, khuôn viên sân vườn được bố trí vô cùng khoa học, hợp phong thủy gia chủ. Sân rộng có sự kết hợp giữa cây xanh, thảm cỏ tạo nên khu vực nghỉ ngơi thư giãn như hòa vào thiên nhiên
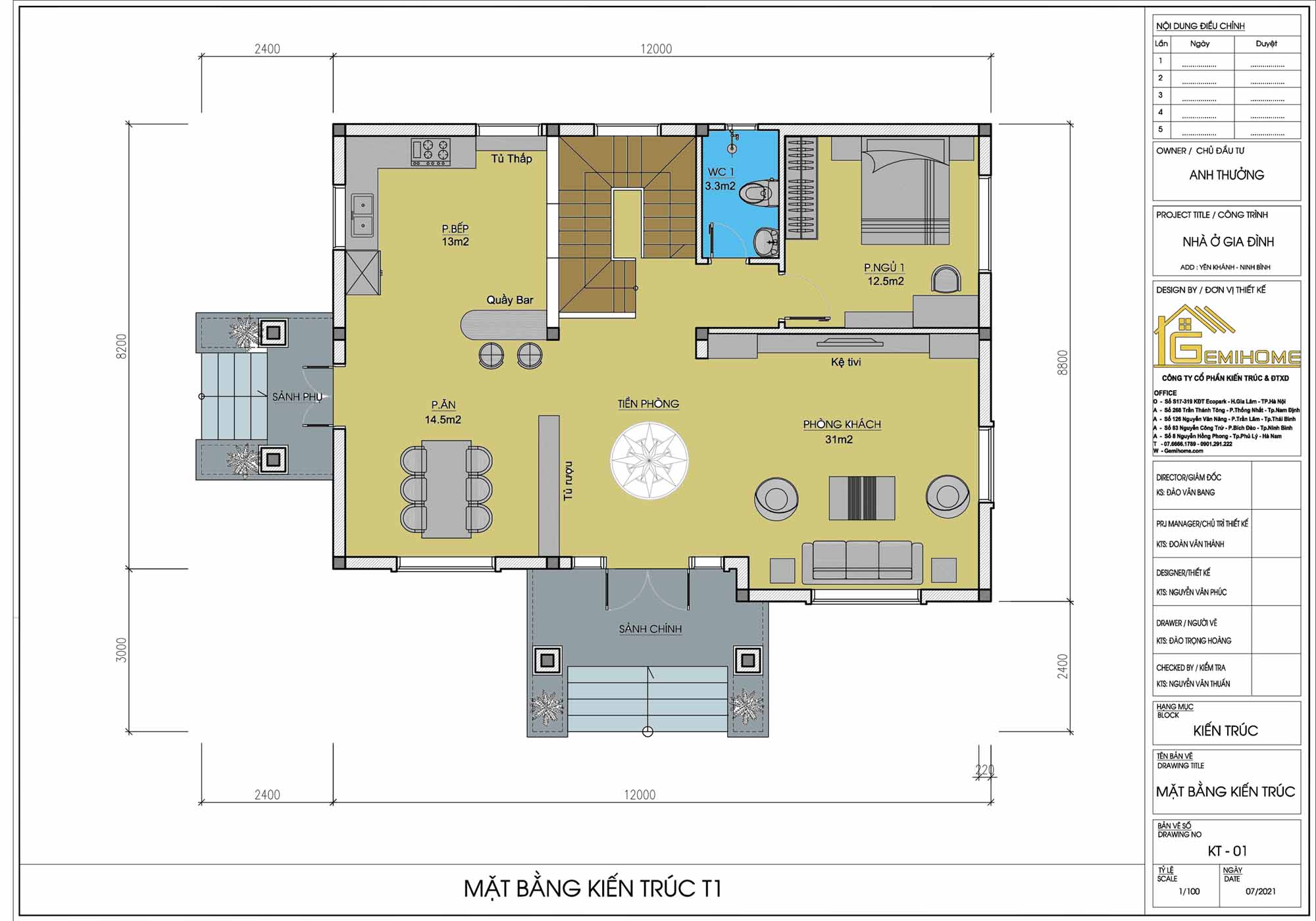
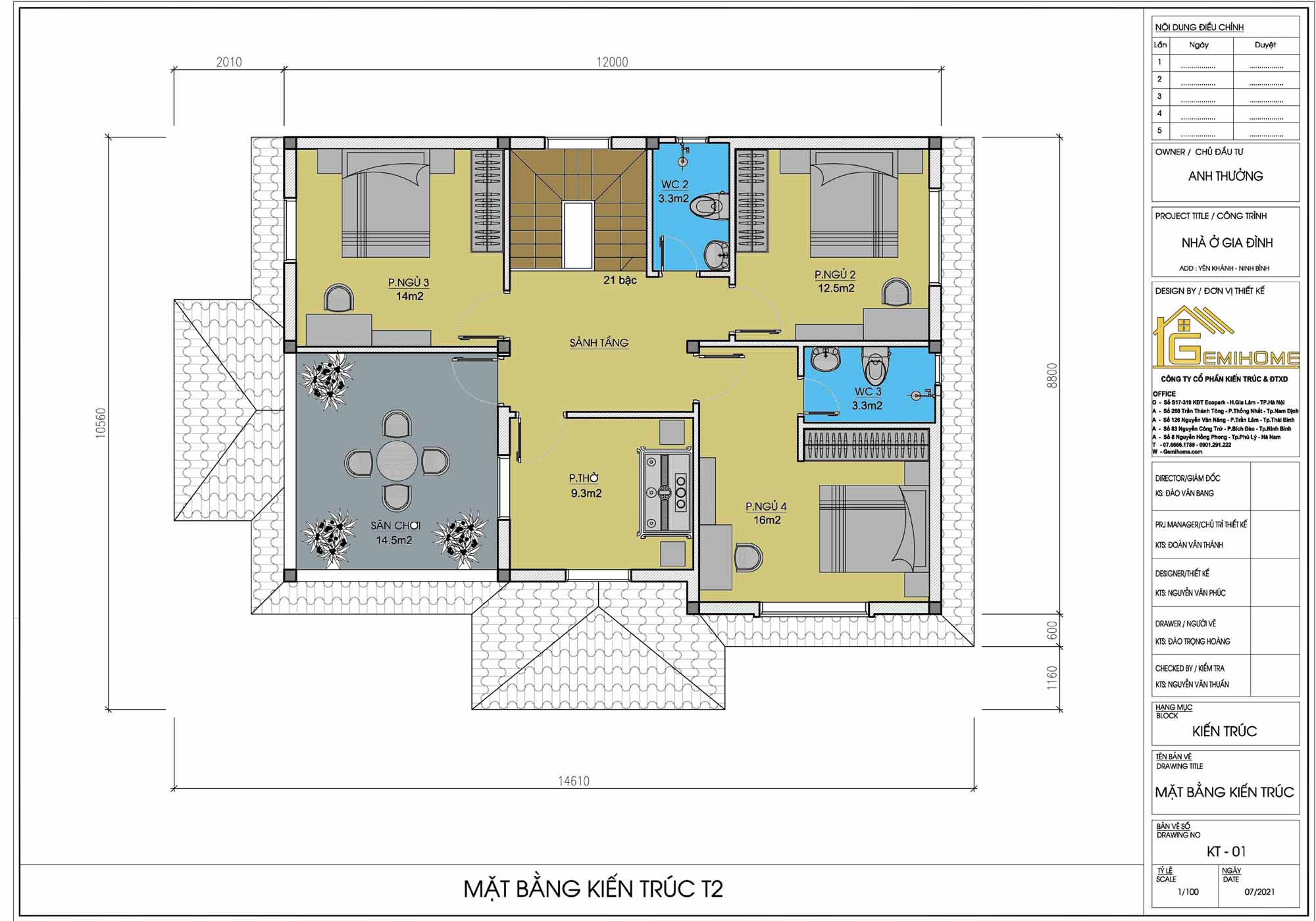
3. Mặt bằng công năng mẫu biệt thự mái nhật 2 tầng
Công năng của căn biệt thự được bố trí hợp lí để đảm bảo nhu cầu sinh hoạt của cả gia đình anh Thướng

mặt bằng kiến trúc tầng 1
- 1 Phòng khách
- 1 Phòng ăn và bếp
- 1 phòng ngủ
- 1 WC chung

mặt bằng kiến trúc tầng 2
- 1 Phòng ngủ master+ WC
- 2 Phòng ngủ các con
- 1 Phòng thờ
- 1 WC chung
Nếu quý vị mong muốn sở hữu cho mình một mẫu thiết kế nhà ở đẹp như vậy, hãy liên hệ ngay theo số Hotline 0766661789 hoặc 0901.291.222 để được tư vấn và hỗ trợ tốt nhất.



